
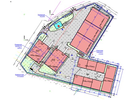
В настоящее время компания ПМ ГРУПП реализует проект строительства складского комплекса «М-12 Склады» общей площадью 8 182 м2. В состав комплекса входят как арочные, так и прямостенные ангары для стеллажного хранения с высотой по стене 8м.
Первая очередь строительства включает два прямостенных ангара площадью по 1 064 м2 каждый. Планируемый ввод в эксплуатацию – январь 2025 года. Вторая очередь включает строительство трех арочных ангаров общей площадью 2 862 м2. Ввод в эксплуатацию – июнь 2026 года. Третья очередь – строительство трех прямостенных ангаров по 1 064 м2 и их последующий ввод в эксплуатацию в декабре 2026 года.
Инженерная инфраструктура обеспечивает автономность и стабильность функционирования всего складского комплекса:
- Газопровод высокого давления, предусмотрено строительство газовой котельной;
- Подведено электричество 150 КВт, возможность увеличения мощности до 500 КВт;
- Водоснабжение и водоотведение;
- Мобильная и интернет связь.